Удобствата на градската среда и спокойствието от тишината. До бъдеща метростанция, малка бутикова сграда пред Акт 16,последни тристаен апартамент.
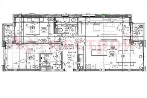
Агенция Артисстрой предлага: на вниманието Ви: тристаен функционален непреходен апартамент с ЗП 106 кв.м на етаж 2 от 5 в сграда ново строителство, пред Акт 16, в един от най-желаните квартали на София - Малинова долина. Сградата се състои от 17 апартамента и предлага модерни удобства и висококачествено строителство.
Разпределение: входно антре, просторна дневна с кухненски бокс, две светли спални и две бани с тоалетна, и балкон. Към апартамента има и мазе, предоставящо допълнително пространство за съхранение. Освен това има възможност за закупуване на гараж/паркомясто .
Просторни апартаменти и дневни, големи „френски" прозорци и невероятна гледка. Тристайните апартаменти са с допълнителен санитарен възел. Топлоизолацията е 12 см. Асансьорът е електрически. Външен вид в крак с модерните архитектурни тенденции в съчетание с безкомпромисен избор на материали и качествено строителство.
Сградата се намира на тихо място, с бърз достъп пеша до метрото, хранителни супермаркети, медицински центрове, аптека, детска градина, Национална Спортна Академия, център за красота, ветеринарна клиника, банка и фитнес центрове. Съчетава близост до оживената градска среда и същевременно невероятното усещане за отдалеченост, природа и спокойствие.
Агенцията ОСИГУРЯВА БЕЗПЛАТНО СЪДЕЙСТВИЕ ПРИ ИПОТЕЧНИ БАНКОВИ КРЕДИТИ. Всички довършителни ремонти, дизайн проекти, обзавеждане. Оферта No 1007077. Други предложения за ново строителство моля на:
ново строителство тристайни апартаменти




























