Нова стилна сграда след Акт 14, последни тристайни и многостайни апартаменти до метро“ Мизия“
Агенция Артисстрой предлага: на вниманието Ви просторен тристаен апартамент с ЗП 102 кв.м на етаж 2 от общо 10 в тухлена сграда с Акт 16 до края на 2025г в най-хубавата част на кв.Овча купел, в непосредствена близост до Нов Български Университет.
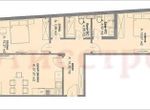
Разпределение: входно антре, дневна с кухненски бокс и трапезарията, две спални, две бани, две тераси,склад. Отопление: централно ТЕЦ. Изложение: изток,запад.
Функционалното разпределение . Има възможност за закупуване на подземни гаражи и паркоместа.
Свободни за продажба апартаменти: само един тристаен апартамент и два бр. многостайни ПАНОРАМНИ апартамента, търговски помещения: два офиса и два магазина,паркоместа и гаражи.
Локация: на тихо място, на минути пеша до бул.Монтевидео, метростанция Мизия, супермаркет BILA, в непосредствена близост до Нов Български Университет.
Агенцията ОСИГУРЯВА БЕЗПЛАТНО СЪДЕЙСТВИЕ ПРИ ИПОТЕЧНИ БАНКОВИ КРЕДИТИ. Всички довършителни ремонти, дизайн проекти, обзавеждане. Оферта No 1008608. Други предложения за ново строителство моля на:
ново строителство тристайни апартаменти
















