Многостаен апартамент пентхаус с Акт 16 в луксозен затворен комплекс в паркова зона.
Агенция Артисстрой предлага: на вниманието Ви многостаен апартамент пентхаус
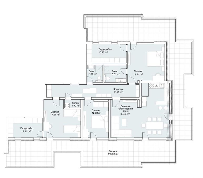
с ЗП 148,54кв.м. и тераси 101,24кв.м. на етаж 6 от общо 6 в затворен луксозен комплекс с Акт 16 от 2022г в кв.Лозенец-Витоша.
Разпределение: входно антре / два просторни коридора/, просторна дневна с кухненски бокс и трапезария , тераса към дневната, три спални - едната от които с дрешник, три бани, мокро помещение. Отопление: индивидуална термопомпа. Изложение: ЮГ,изток, запад.Цена за апартамент е без вкл.ДДС.
Комплекс от затворен тип със задължителна такса управление и поддръжка, която е 1.88лв. за кв.м. на месец.Подземни паркоместа и гаражи на цени от 37 000 евро без ДДС.
Удобства: детски площадки, зелени алеи. Фитнес център с уелнес зона, Ресторант градина с детски център и 18 търговски обекта. Сигурност: Контролиран достъп, видеонаблюдение и мобилен патрул 24/7. Управление и поддръжка на комплекса с фирма, контролирана от инвеститора. Локация: на минути пеша до метроспирката „Витоша“, Ловен парк - Борисова градина, Зоологическа градина, в близост до Мол Парадайз, детски градини и спортен комплекс.
Агенцията ОСИГУРЯВА БЕЗПЛАТНО СЪДЕЙСТВИЕ ПРИ ИПОТЕЧНИ БАНКОВИ КРЕДИТИ. Всички довършителни ремонти, дизайн проекти, обзавеждане. Оферта No 1017412. Други предложения за многостайни апартаменти моля на:
многостайни апартаменти София




























