Последни ПАНОРАМНИ тристайни апартаменти . Централна локация, до парк „Света Троица“, между двете метростанции.
Агенция „Артисстрой“ /www.artisstroy.com/ предлага: тристайни апартаменти в строеж и Акт 16 до лятото на 2025г в центъра на гр.София, кв.Разсадника.
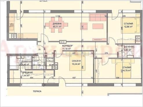
Разпределение: входно антре, просторна дневна с трапезария и кухненски бокс, две спални, две бани с WC, две панорамни тераси. Изложение : ЮГОизток, север.
Отопление: централно ТЕЦ.
Жилищна сграда, състояща се от три отделни секции със собствени входове. Жилища с перфектни като функционалност разпределения. Всеки от трите входа разполага със собствен асансьор, който достига и до съответните нива за подземно паркиране в сградите.
На партерния етаж има разположени три магазина, търговски обект и надземни гаражи.
Материалите използвани в строителния процес са от най-високо качество ,отговарящи на всички стандарти и най-новите тенденции на пазара. Предвиденото богато озеленяване на проекта, съчетано с дървесните елементи на фасадата , създава неповторимо усещане за уют и спокойствие в градската среда.
Последни свободни за продажба апартаменти: тристайни-от 185 000Е, многостаен панорамен апартамент-339 000Е, паркоместа-от 18 000Е.
Локация: бул.Стамболийски, паркове – „Света Троица“ , „Свети Петър и Павел“,между две метростанция: „Вардар“ и „Константин Величков“, градски спирки, хипермаркети, 113 СУ „Сава Филаретов“, 57 СУ „Свети Наум Охридски“, детска градина № 169 „Коледарче“, Медицински заведения – ДКЦ 10, Първа АГ Болница, денонощни аптеки
Предимства: Отлично местоположение; Модерна визия; Функционални и комфортни разпределения; Висококачествени материали; Атрактивни цени.
Агенцията ОСИГУРЯВА БЕЗПЛАТНО СЪДЕЙСТВИЕ ПРИ ИПОТЕЧНИ БАНКОВИ КРЕДИТИ. Всички довършителни ремонти, освежаване. Оферта No 1005838
Други предложения за ново строителство моля на: ново строителство тристайни апартаменти
































