Последни двустайни и тристайни в нова луксозна сграда с Акт 16 до края на 2024г.Малка бутикова сграда, по 2 апартамента на етаж.
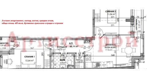
Агенция „Артисстрой" /www.artisstroy.com/ предлага: на разсрочено плащане функционален тристаен апартамент с ЗП 69 кв.м на етаж 4 от общо 7 в нова жилищна сграда в строеж / Акт 14/ и пусков срок до края на 2024г в кв.Манастирски ливади изток-Гоце Делчев.
Разпределение: входно антре, дневна с кухненски бокс, две спални, две бани с WC, тераса. Изложение: изток, запад. Отопление: газ.
Проектирани са, функционални, светли жилища с тераси, на 100 м до бул.Т.Каблешков. Уютна атмосфера на спокойствие, хармония, красота и равновесие.
Удобна престижна локация: Южен парк на 10 мин пеша, до два хипермаркета, Мол Парадайс, няколко спортни зали, удобен достъп до ключови пътни артерии .
Агенцията ОСИГУРЯВА БЕЗПЛАТНО СЪДЕЙСТВИЕ ПРИ ИПОТЕЧНИ БАНКОВИ КРЕДИТИ. Всички довършителни ремонти, обавеждане. Оферта No 1008208
Други предложения за ново строителство моля на: ново строителство тристайни апартаменти
















