Просторен двустаен апартамент с Акт 16 ,на минути пеша до парк и метрото „ бул.Г.М.Димитров, 230.000€ | 449.840,90лв, 89 кв.м.

  • Апартамент
  • 1
  • 1
  •  
Код 1011593
Цена на кв.м. 2.584€ | 5.054,39лв
Област Дианабад (София Град)
Адрес Улица Проф. Боян Каменов, Студентски 1700
Зона Жилищна зона
Спални 1
Етаж 3-ти
Гараж / Паркомясто Да
Година на строеж 2025
Година на обновяването 2025
Отоплителна Система Централно отопление (Топлофикация) - Подово отопление
Енергиен клас
A +
Нива 1
Кухни 1
Дневни 1
Бани 1
Тоалетна 1
Статус Ремонтиран, Недовършен, Ново строителство, За ремонт
Тип За почивка , Инвестиционен , Подходящ за търговска употреба, За студенти, Краткосрочен наем
Допълнително Запазен, Луксозен, с Акт 16
  • Плейруум
  • Склад / Хранилище
  • Асансьор
  • Тераса
  • Ъглов
  • Просторен
  • Големина на тераси: 2 кв.м.
  • Вътрешно стълбище
  • Гледка
  • Позволено за домашни любимци
  • Споделена градина
  • Месечна такса за поддръжка на общи части: 5 €
  • Дограма: Алуминиева - PVC
  • Нощно захранване
  • Блиндирана врата
  • Ориентация: Изток Запад
  • Тип път: Асфалт
  • Достъп за инвалиди
  • Охранителна система
  • Тента
  • Тип стъклопакет: Трикамерен
  • Тип под: Промишлени настилки
  • Светъл

Просторен двустаен апартамент с Акт 16 ,на минути пеша до парк и метрото „ бул.Г.М.Димитров.
Агенция Артисстрой предлага: на вниманието Ви просторен двустаен непреходен апартамент с ЗП 75 кв.м на етаж 3 от общо 6 в нова тухлена сграда с Акт 16.
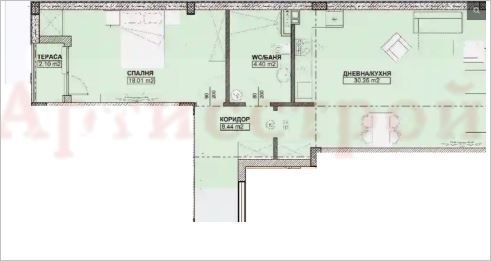
Разпределение: входно антре /8,44 кв.м/, просторна дневна / 30,26 кв.м/, спалня / 18 кв.м/, баня с тоалетна /4,40 кв.м/, тераса /2,10 кв.м/.Изложение: изток,запад.
Отопление : централно ТЕЦ и с инсталация за климатици.Цената е без вкл.ДДС
Състояние: на шпакловка и замазка, дограмата е троен стъклопакет, окабеляване за интернет и кабелна телевизия, . Предлагат се и паркоместа в сградата.
Локация: нова бутикова сграда на граница кв.Дианабад- Студентски град, на пешаходно разстояние от метростанция Г.М.Димитров, както и множество супермаркети детски градини и училища.
Агенцията ОСИГУРЯВА БЕЗПЛАТНО СЪДЕЙСТВИЕ ПРИ ИПОТЕЧНИ БАНКОВИ КРЕДИТИ. Всички довършителни ремонти, дизайн проекти, обзавеждане. Оферта No 1011593. Други предложения за ново строителство моля на:
ново строителство двустайни апартаменти

Улица Проф. Боян Каменов, Студентски 1700



Изчесляване на вноски

Въведете информация за заема и натиснете 'Изчисли '
%
Години

Изчисли